PCV 2 TN 3020
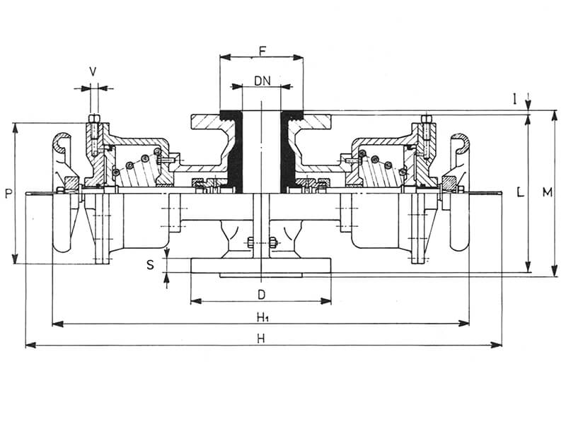
Valvola a pinza pneumatica normalmente aperta in posizione di riposo. La caratteristica di questa valvola è che dispone di due attuatori pneumatici alle sue estremità, così da garantire un’apertura e chiusura più equilibrata del manicotto.
E’ dotata di due volantini per le manovre manuali di emergenza, e due indicatori di posizione visivi. La valvola essendo equilibrata può essere installata in posizione sia verticale che orizzontale.
Diametri di costruzione = DN 80 ÷ 250 mm.
Caratteristiche e dimensioni
Valvola equilibrata a doppio comando pneumatico. Valvola costantemente aperta in posizione di riposo. Chiusura mediante immissione di aria compressa nei cilindri pneumatici. Dotata di volantini per la chiusura manuale di emergenza.
Cilindri e pistoni: in lega di alluminio.
Corpo: normalmente in alluminio.
Caratteristiche costruttive: come per il tipo “C” (TN 2015/B).


