SD TN 2014
La valvola SD TN 2014 è simile per caratteristiche tecniche alla sorella TN 2014/B.
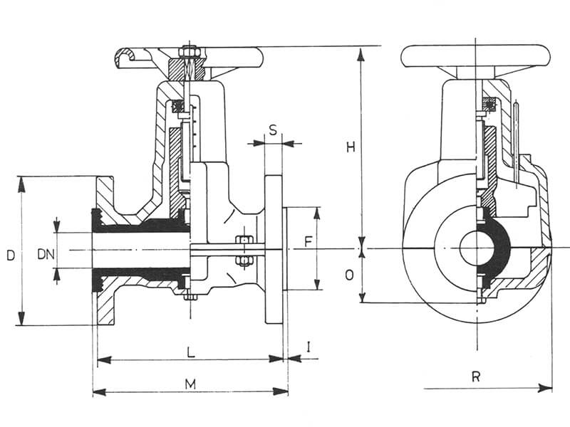
Si differenzia solamente per il tipo di scartamento (secondo norme DIN 2532. Quota L del nostro disegno).
Valvola a comando manuale, tramite azionamento del volantino per la chiusura e l’apertura del manicotto.
Meccanismo di chiusura a semplice effetto.
Diametri di costruzione dal DN 10 al DN 50 mm.
Caratteristiche e dimensioni
Dimensioni Flange: secondo norme UNI 2223 – PN 10-16 o DIN 2532 – ND 10. A richiesta, secondo altre norme.
Scartamento tra le estremità delle flange:secondo norme DIN 3202 F1. A richiesta si possono fornire valvole con scartamenti minori (tipo “D”).
Meccanismo di chiusura: a semplice effetto.
Corpo: alluminio o ghisa con protezione resistente alla corrosione previa sabbiatura.
Manicotto: gomma para od elastomeri sintetici (Neroprene, Butile, Hycar, Hypalon, Silicone, Viton).


