TN 2034
Valvola comandata mediante riduttore di velocità e motore elettrico.
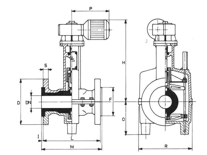
Diametri di costruzione = DN 25 ÷ 200 mm.
Caratteristiche e dimensioni
Valvola comandata mediante riduttore di velocità e motore elettrico.
Fine corsa:
- 1 per valvola aperta,
- 1 per valvola chiusa,
- 1 per sicurezza.
Corpo: normalmente in alluminio.
Caratteristiche costruttive: come per i tipi “SD” (TN 2014) e “SC” (TN 2015).


