SC TN 2015
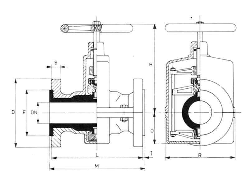
Valvola a pinza, comando manuale tramite l’azionamento di un volantino per la chiusura e l’apertura del manicotto. Meccanismo di chiusura a doppio effetto.
Lo scartamento delle flange segue la normativa DIN 3202F1
Viene costruita dal DN 65 al DN 200 mm.
Caratteristiche e dimensioni
Dimensioni flange: secondo norme UNI 2223 – PN 10-16 o DIN 2532 – ND 10. A richiesta, secondo altre norme.
Scartemento tra le estremità delle flange: secondo norme DIN 3202 F1. A richiesta si possono fornire valvole con scartamenti minori (tipo C).
Meccanismo di chiusura: a doppio effetto.
Corpo: alluminio o ghisa con protezione resistente alla corrosione previa sabbiatura.
Manicotto: gomma para od elastomeri sintetici (Neoprene, Butile, Hycar, Hypalon, Silicone, Viton).


